А-Фрейм












А-фрейм дом Цезарь
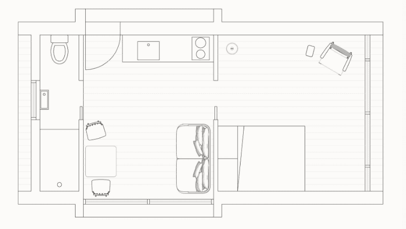
38м²
1 ₽1 ₽
-общая площадь 38 -жилых комнат 1 -габариты дома 10х4 -У дома один этаж. Габариты дома 4 на 6,25 метров. Панорамные окна дают больше света. Данный дом имеет мансарду которая позволит увеличить полезное пространство.
